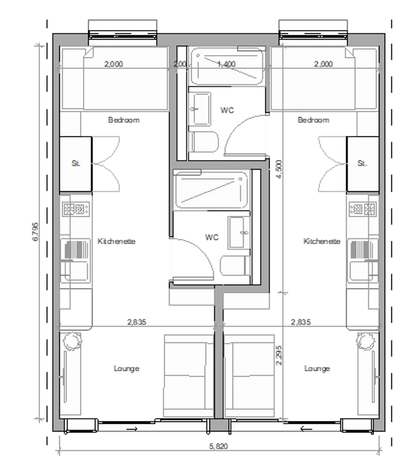
To meet the growing demand for space that provides accommodation to a variety of specific end users at specific locations such as hospital staff, students, itinerant workers, patient families, decanted tenants, emergency housing users, etc. We have designed a modular studio in accordance with our principles and concept which offers:








Wellbeing Places Rochdale Village is an exciting and innovative development that will provide 80 new homes, parking and shared community gardens, carefully designed to tackle isolation and loneliness, improve health outcomes and overall foster the wellbeing of the new community it will create.
In alignment with the Rochdale Housing Strategy and Locality Plan, increasing market rents in Central Manchester and a post-Covid market trend for larger apartments and more open space, this site is ideal for our Wellbeing Village. These market conditions, coupled with good transport links into Manchester, the surrounding towns and countryside, make this site a credible location for an innovative and transformational scheme of this nature. Increasing demand and rising rents in the immediate vicinity of Middleton underline the business case and general timeliness for this scheme in meeting current housing needs.








It is no coincidence that those parts of the UK whose residents have the lowest levels of health and wellbeing have the highest levels of relative deprivation and loneliness. In fact, Middlesbrough has the highest proportion of neighbourhoods in a larger area that are in the most deprived 10 per cent of neighbourhoods in the country.*
Utilising a wide body of accepted empirical evidence we developed a concept for the town centre of Middlesbrough which has a direct, long lasting, impact on 3 of the 7 domains of deprivation (Health; Living
Environment; and Barriers to Housing & Services), as well as positive impacts on the remaining 4 (Income; Employment; Education and Crime).
Although no longer proceeding as a project the above was achieved through the provision of innovative town centre homes and office buildings brought together in a unique landscape led inclusive public setting of our proposed Winter Gardens, all of which are designed to promote improved health outcomes, both preventative and rehabilitative, and enhance happiness, joy and wellbeing for users, residents and visitors.
*Ministry of Housing, Communities and Local Government - The English Indices of Deprivation 2019


